Zehnerreihe

Fünf Doppel-Einfamilien-Häuser mit Einstellhalle

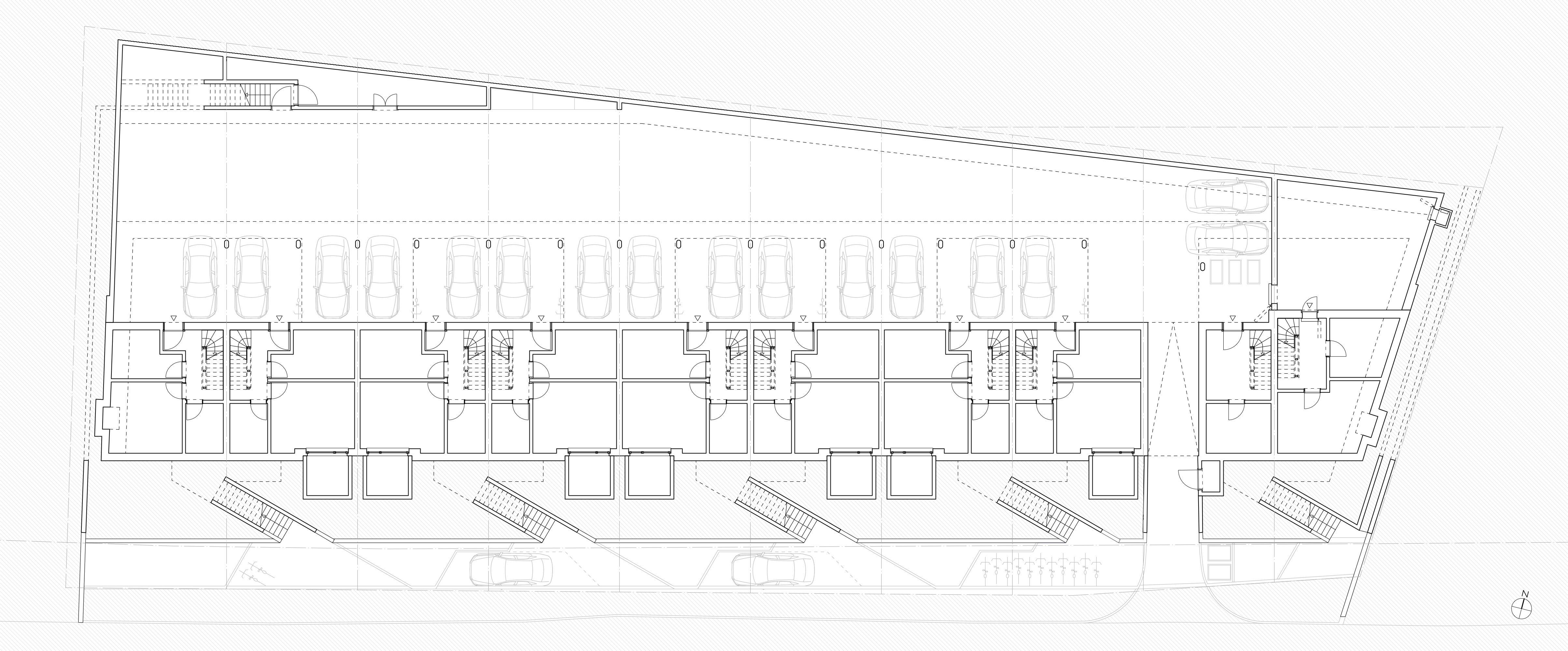
Am Ortsausgang von Riehen in Richtung Inzlingen wurden fünf kompakte Doppel-Einfamilienhäuser mit einer zentralen Einstellhalle realisiert. Die Erschliessung der zehn Häuser erfolgt über gemeinsame Treppenanlagen, die sich durch begrünte Vorgärten ziehen. Über eine gemeinsame Eingangszone gelangt man über den Entréebereich in den grosszügigen Wohn- und Essbereich, der sich von Norden nach Süden durch das Gebäude steckt. Durch den eingeschnittenen Sitzplatz werden die Räume über jeweils drei Himmelsrichtungen Norden, Süden und Osten resp. Westen belichtet. Im Obergeschoss befinden sich zwei Schlafzimmer sowie das dazugehörige Badezimmer. Das Elternschlafen, ein Badezimmer mit Ankleide resp. Arbeiten bilden zusammen das Attikageschoss. Die kompakte Erschliessung belohnt durch grosszügig wirkende Räume und Ausblicke. Alle Schlafräume werden zweiseitig über Eck belichtet und binden den Naturraum ein.

Die Häuser sind ab Oberkante Erdgeschoss in moderner vorgefertigten Holzelementbauweise konstruiert und erhielten eine vorvergraute, hinterlüftete Holzlamellenfassade. Acht Erdsonden mit einer Tiefe von je 180 Metern kombiniert mit einer Wärmepumpe sorgen für den notwendigen Wärmebedarf im Winter – Im Sommer kann die Fussbodenheizung zum Kühlen herangezogen werden. Den notwendigen Strom für die Wärmepumpe liefert die Photovoltaikanlage auf den Flachdächern der Häuser. Autos und Velos sind in der ebenerdigen Einstelle untergebracht von der man das jeweilige Haus separat erschliesst.

Strassenfassade Richtung Osten
Strassenfassade Richtung Westen
Vorgärten
Zugänge
Doppelhauseinheit
Situationsplan
Höhenstaffelung Strassenfassade
Ausschnitt Gartenfassade
Nachbarschaftsbeziehungen
Küche
Durchblicke
Detail Treppenhaus
Ausblick auf die Dachterrasse
Ausblick ins Autal
Badezimmer Obergeschoss Haus 10
Dachterrasse
Querschnitt Hauptgebäude
Zwischenräume
Querschnitt Nebengebäude
Einstellhalle
Grundriss Untergeschoss
Luftaufnahme
Grundriss Erdgeschoss
Grundriss Obergeschoss
Grundriss Dachgeschoss
Luftaufnahme
Siedlungsmodell
Siedlungsmodell