Engelweiss

Vorgefertigtes Holzhaus in Brettsperrholz mit vorgehängter Holzfassade in Weisstanne

Das flexible, variable Wohnhaus steht in zweiter Reihe in der denkmalgeschützten Hofstatt- resp. Dorfzone der Gemeinde Rodersdorf. Gebäudetypologie und Gebäudegestalt lehnen sich an die ortstypischen Bauern- und Ökonomiegebäude im Dorf an und interpretieren die Funktionstrennung von Wohnen und Scheune durch eine dazwischen liegende Tenne neu. Die Rhythmisierung der vertikalen hinterlüfteten Holzfassade, sowie der Einsatz durch ortstypische Ornamente verorten das Gebäude und stellen einen Bezug zu den umgebenden Scheunen her. Die Fensterbänder mit den dazwischen liegenden Schiebeläden betonen bewusst die Horizontalität der Öffnungen und stellen sich gegen die Typologie einer Lochfassade.

Das vorgefertigte Holzhaus wurde in Brettsperrholz konstruiert und gefertigt. Die Gebäudedämmung erfolgte ausschliesslich in Holzfaserdämmung mit einer vorgehängten hinterlüfteten Holzfassade in unbehandelter Weisstanne. Ebenso sind der Holzriemenboden, die Türen, Fenster und Möbel in Weisstanne ausgeführt. 

Das variable Gebäude wurde als Einfamilienhaus mit zwei Treppenhäusern ausgeführt. Bei Bedarf kann ein Treppenhaus entfernt und durch einen rollstuhlgängigen Hublift ersetzt werden. Ebenso lässt sich durch die zwei vorhandenen Erschliessungen eine Einliegerwohnung abtrennen, so dass zwei Wohneinheiten entstehen. 

Das Gebäude wird völlig autark von einer Solarkollektoranlage mit einem gekoppelten Stückholzofen über einen zentralen Warmwasserspeicher beheizt und mit Warmwasser versorgt. 

Westfassade
Situationsplan
Blick vom Nachbargrundstück
Zugang Küche und Essbereich
Essplatz und Küche
Wohnzimmer mit zweiseitig bedienbaren Holzofen
Axonometrie
Zentraler Eingangsbereich
Treppenantritte Erdgeschoss
Treppenaufgang zum Obergeschoss
Zweigeteiltes Schlafzimmer
Studio mit Lüftungsflügel
Raumsequenzen
Übergangsflur
Badezimmer Obergeschoss
Treppenhaus
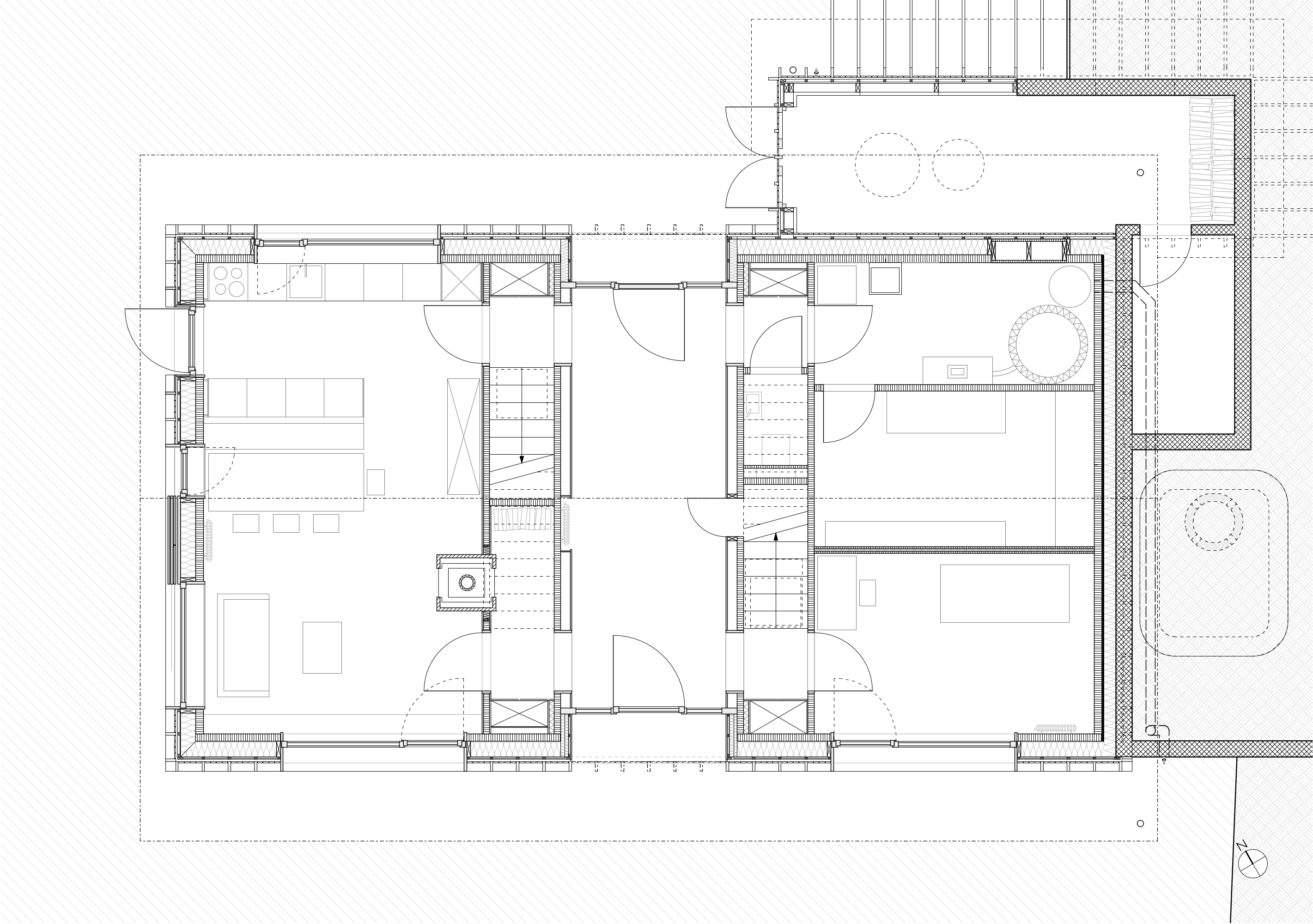
Grundriss Erdgeschoss
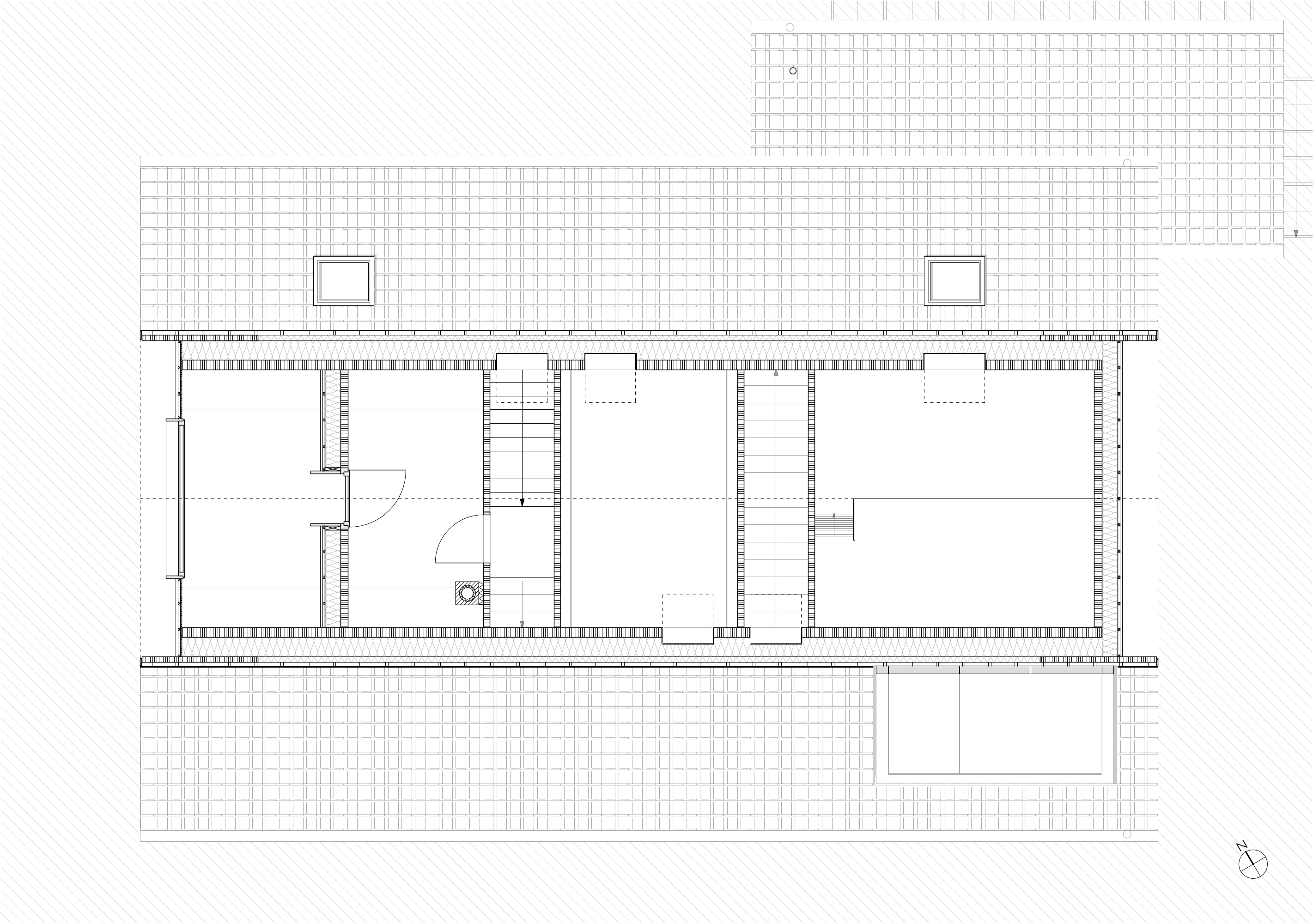
Grundriss Obergeschoss
Grundriss Empore
Fassade von Süden
Fassadenrhythmisierung
Garteneingang
Fassadendetail mit Sockelanschluss
Ortstypische Ornamentik
Montage Treppenhauselement
Raumsequenzen Obergeschoss
Montage Dachgeschoss
Querschnitt Treppenhaus
Querschnitt Eingangsbereich | Badezimmer
Längsschnitt
Südfassade
Westfassade
Nordfassade
Ostfassade