Raumteiler

Sanierung und räumliche Optimierung einer 2.5-Zimmer-Wohnung aus dem Jahr 1964

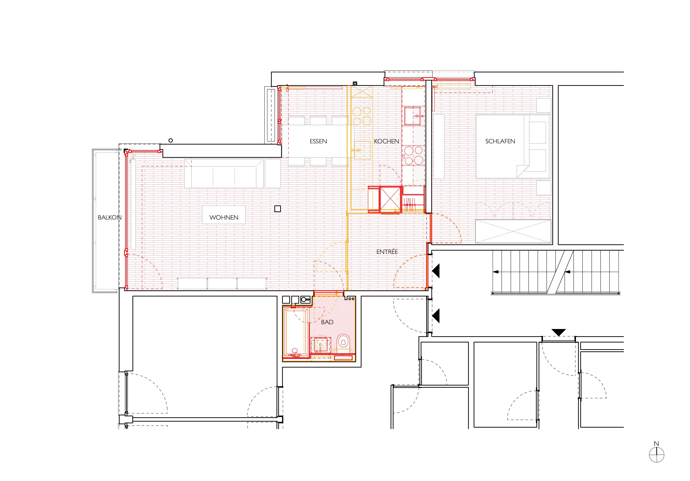
Die Wohnung wurde komplett entkernt und Küche, Wohnen und Entrée zu einem Raum zusammengelegt. Um dem Raum weiterhin Struktur zu geben, separiert ein Raumteiler die Bereiche Entrée zur Küche mit Essbereich. Zum Wohnungseingang beinhaltet das Möbel eine Garderobe und zum Wohnzimmer einen schmalen Schrank mit Bücherregal. Eine Nische für eine Kaffeemaschine, sowie eine Kühl- und Gefrierkombination ist zur Küche orientiert. Zur räumlichen Optimierung der Wohnung wurde die Küchenzeile auf die gegenüberliegende Wand umgelegt und sämtliche Zwischenwände rückgebaut. Das nur 3.5m2 grösse Badezimmer wurde neu organisiert und wirkt durch den vollflächigen Spiegelschrank mit Beleuchtung räumlich grosszügig. Eine 3kg-Waschmaschine findet in der Vorwandebene unter dem Waschtisch Platz.

 

 

Raumteiler zwischen Küche und Entrée
Situationsplan
Raumteiler mit Bücherregal und Garderobe
Komplett geöffneter Wohn- und Essbereich
Küche
Raumteiler mit integriertem Kühlschrank
Raumteiler mit integriertem Kühlschrank
Blick ins Badezimmer
Waschtisch mit integrierter Waschmaschine