Fünfräuber

Kleinsiedlung aus fünf Einfamilienhäusern als vorfabrizierter Holzbau

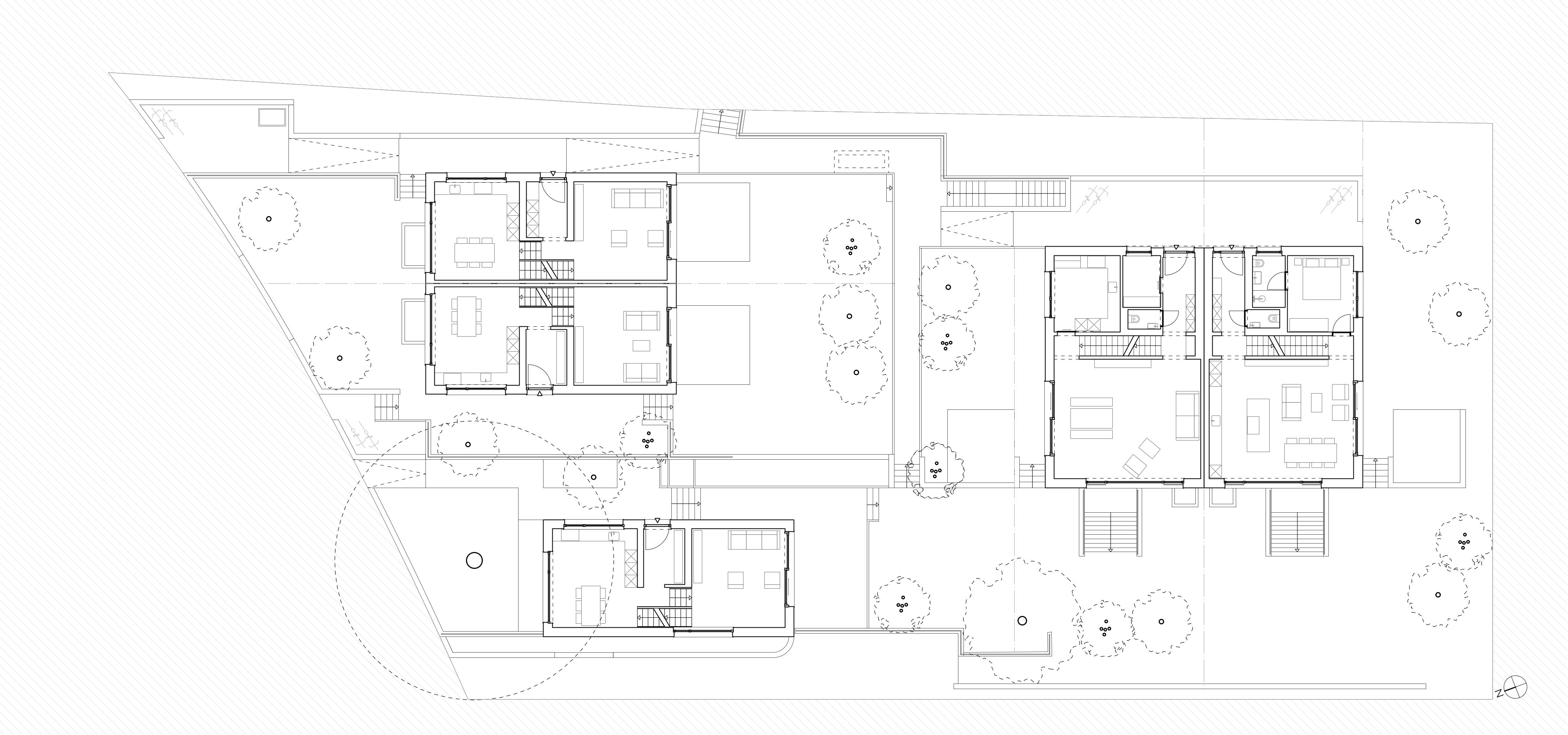
Auf dem zu planenden Grundstück mit einer Grösse von rund 1’600m2 befand sich ein grosszügig bemessenes Zweifamilienhaus aus den 1960er Jahren mit insgesamt 4 Höhenniveaus. Eine sinnvolle und effektive Sanierung und Erweiterung von zwei auf vier Wohneinheiten scheiterte leider am neuen Baureglement, das nur noch Ein- und Zweifamilienhäuser erlaubt. Bei einer optimalen Ausnutzung der Parzelle unter Berücksichtigung der maximalen Gebäudeabstände konnte ein Ensemble bestehend aus drei Baukörper mit insgesamt fünf Wohneinheiten in zwei unterschiedlichen Gebäudetypologien entwickelt werden.

Die kleine Siedlung verfügt über einen bemerkenswerten Baumbestand und einer spannenden Topografie, die auf Grund des vorgegebenen Baureglements nur minimal angepasst werden durfte. Jedes Haus hat seine eigenen privaten Zugänge über den Aussenraum und die zentrale Einstellhalle. Eine rückwärtige Erschliessung über die Gärten ermöglicht eine zusätzliche Verbindung zur Tiefgarage und dient als Begegnungszone für Ihre Anwohner und deren Kinder.

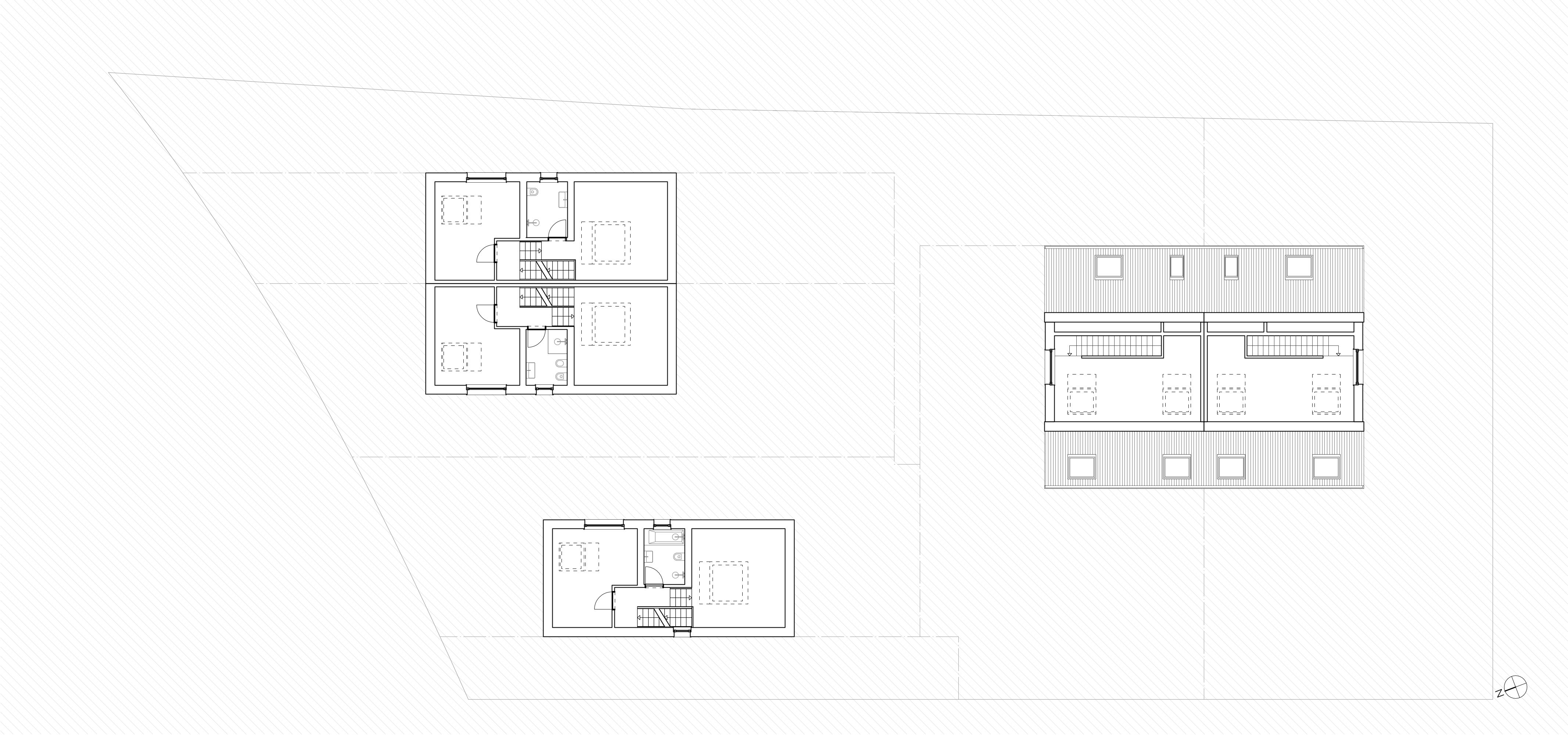
Die zwei Baukörper entlang der Strasse sind als zweigeschossige Wohnhäuser plus Dachgeschoss konzepiert. Die asymmetrische Dachform wurde von den umgebenden Wohnhäusern aus den 1960er Jahren übernommen. Nachdem das Strassenniveau mit der Vorgartenzone tiefer liegt als die Parzelle, verbindet ein Treppenhaus mit Splittlevel die vordere mit der hinteren Geschossebene.

Während sich der Wohnraum zum Garten nach Süden orientiert, blickt man von der Küche mit Essbereich in den grosszügigen, verschatteten Vorgarten. Die Schlaf- und Gästezimmer in den Obergeschossen orientieren sich je nach Ebene in die unterschiedlichsten Himmelsrichtungen und enden auf einer Galerie mit einem Panoramafenster Richtung Basel. Durch die zentrale Erschliessung gelangt man auf kurzen Wegen auf die jeweiligen Stockwerke, sowie zu den mittig gelegenen Badezimmern.

Das Doppel-Einfamilien-Haus im rückwärtigen Bereich besitzt neben dem Vollgeschoss zwei Dachgeschosse. Die grosszügigen Wohn-Ess-Bereiche orientieren sich jeweils in zwei Himmelsrichtungen zu den eigenen Aussenräumen und Sitzplätzen. Die drei Schlaf- und zwei Badezimmer befinden sich auf zwei Dachgeschossebenen und können je nach Ausbauwunsch individuell gestaltet werden.

Der Anspruch nach einem hohen nachhaltigen und ökologischen Ansatz wird durch die vorgefertigte Holzkonstruktion und der vorhängten, hinterlüfteten Holzfassade aus regionaler Produktion, sowie einer zweischichtigen Zellulose- resp. Holzfaserdämmung gerecht. Die Energie für Warmwasser, sowie zum winterlichen Heizen und sommerlichen Kühlen via Fussbodenheizung wird über vier 200m tiefe Erdsonden inklusive Wärmepumpe erzeugt. Der dafür benötigte Strom wird durch die In-Dach-Photovoltaikanlage auf den südlichen Dachflächen der nördlichen Häuser erzeugt. Zur Bewässerung der Bäume und Grünanlagen wird das Regenwasser aller fünf Häuser in einer zentralen 10m3-Zisterne gesammelt und verteilt.

 

Situationsplan
Strassenansicht
Haus 2 | 3 und 4 | 5
Giebelfassade - Haus 2
Haus 1 und 2 | 3
Blick zur Winterlinde - Haus 2
Treppenhaus - Haus 2
Blick vom Kinderzimmer - Haus 2
Blick auf Haus 1
Fassadendetail - Haus 2
Dachlandschaften
Büro | Bibliothek | Gästezimmer mit Panoramafenster
Schlafzimmer Dachgeschoss - Haus 2
Treppenantritt
Küche zum Wohnzimmer - Haus 2
Grundriss Untergeschoss
Grundriss Erdgeschoss
Grundriss Obergeschoss
Grundriss Dachgeschoss
Giebelfassade - Haus 4
Zweites Dachgeschoss Haus 5
Von Schlafzimmer zu Schlafzimmer - Haus 5
Treppenhaus - Haus 5
Hauszugang Haus 4 | 5
Giebelfassade - Haus 5
Küche - Haus 5
Blick zum Entrée - Haus 5
Blick nach Riehen - Haus 5
Strassenansicht Haus 2 | 3 und Haus 1
Ansicht Haus 4
Ansicht Haus 1 und Haus 4 | 5
Ansicht durch Haus 2 und Haus 4 | 5